Личный кабинет

Угол CPO 90 горизонтальный 90 градусов 500х80 в комплекте крепежные элементы соединительные пластины

Артикул: 36027K
Бренд: DKC (ДКС)
3721.22 руб.
В наличии 1 упак
Срок поставки: 2 дн.
Срок изготовления: 45 дн.
Цена может быть не актуальной

Основные характеристики

Артикул:36027K
Бренд:DKC (ДКС)
Единица измерения:упак
Тип изделия: Угол горизонтальный
Материал изделия: Сталь
Высота, мм: 80
Ширина, мм: 630
Покрытие: Оцинковано по методу сендзимира
Толщина материала изделия: 0.8

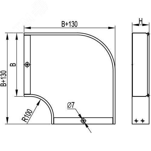
Угол CPO 90° горизонтальный 500х80 мм с комплектом крепления

Горизонтальный угол CPO 90 градусов представляет собой специальный профильный элемент, предназначенный для монтажа подконструкций вентилируемых фасадов и других строительных систем. Изделие с размерами 500 мм на 80 мм обеспечивает надежное и правильное формирование внешних углов здания, гарантируя высокую прочность и точную геометрию конструкции.

Назначение и область применения

Уголок используется для создания несущего каркаса при облицовке фасадов керамогранитом, фиброцементными панелями, композитными кассетами и другими материалами. Основная функция – соединение вертикальных и горизонтальных профилей в угловых узлах, обеспечение жесткости и устойчивости системы к ветровым и статическим нагрузкам. Применение регламентируется проектной документацией, разработанной в соответствии с действующими строительными нормами.

Конструктивные особенности и комплектация

Изделие изготовлено из оцинкованной стали, что обеспечивает антикоррозионную защиту и длительный срок службы. Уголок поставляется в полной комплектации, включающей необходимые крепежные элементы (саморезы/заклепки) и соединительные пластины для монтажа. Такая комплектация позволяет оптимизировать процесс установки и гарантировать соответствие всех компонентов системы друг другу.

Технические характеристики и монтаж

Геометрия в 90 градусов позволяет формировать четкие прямые углы. Размер 500х80 мм является оптимальным для большинства стандартных решений. Монтаж осуществляется в соответствии с СП 70.13330.2012 «Несущие и ограждающие конструкции» (актуализированная редакция СНиП 3.03.01-87), а также с учетом требований СП 17.13330.2017 «Кровли» (для сопрягаемых элементов) и технических указаний производителя конкретной фасадной системы. Все работы должны выполняться квалифицированным персоналом.

Нормативная база и стандарты

Качество и безопасность изделия определяются рядом межгосударственных и национальных стандартов:
- ГОСТ 14918-80 «Сталь тонколистовая оцинкованная с непрерывных линий» (или его актуальные обновления) – по материалу.
- ГОСТ 103-2006 «Прокат сортовой стальной горячекатаный» – по исходной заготовке.
- ГОСТ Р 58123-2018 «Конструкции фасадные вентилируемые. Общие технические условия» – как ключевой стандарт для систем навесных фасадов.
Проектирование и расчет систем с использованием подобных элементов должны учитывать требования СП 16.13330.2017 «Стальные конструкции» и СП 20.13330.2016 «Нагрузки и воздействия».

Контроль качества и безопасность

Изделие производится в соответствии с утвержденными техническими условиями (ТУ). Контроль геометрических параметров, толщины цинкового покрытия и механической прочности является обязательным этапом выпуска продукции. Использование сертифицированных компонентов в комплекте обеспечивает надежность узлов крепления. Информация о методиках испытаний фасадных систем может быть найдена в специализированных источниках, например, в сборниках ВНИИМ им. Д.И. Менделеева или на портале ФАУ «ФЦС».

Хранение и транспортировка

Уголки должны храниться в сухих закрытых помещениях, защищенных от атмосферных осадков. При транспортировке необходимо исключить механические повреждения и деформацию профиля. Упаковка – паллетированная или в картонных коробках с обязательной маркировкой.

Тип изделия: Угол горизонтальный
Материал изделия: Сталь
Высота, мм: 80
Ширина, мм: 630
Покрытие: Оцинковано по методу сендзимира
Толщина материала изделия: 0.8
Климатическое исполнение: ОМ2, Т2, У2, УХЛ2, ХЛ2
Цвет: Светло-серый
Рекомендованный проектный ассортимент: Да
Преимущества: Поставляется в комплекте с крепежными элементами. Комплект крепежа, сопровождающий аксессуар, делает монтаж простым и быстрым за счет отсутствия необходимости подбора правильного крепежа на объекте|Применение комплектных аксессуаров позволяет свести к нулю ошибки расчета и подбора крепежа в процессе проектирования|Исключает риск развития электрохимической коррозии, возникающей при ошибочном подборе крепежа из несовместимых материалов|Изготавливается из оцинкованной стали с массой покрытия не менее 180 г/м2, что соответствует ГОСТ 52868-2021 и ГОСТ 14918 - 2020, и обеспечивает требуемую надежность и долговечность кабельной линии. Подтверждено протоколами соответствующих испытаний, в том числе в камере соляного тумана|Обеспечивает плавный изгиб трассы. Плавный поворот способствует сохранению целостности кабеля.
Дополнительная информация: масса цинкового слоя не ниже 180 г/м2|cоответствует ГОСТ 52868-2021
Комплектация: 37303R - пластина соединительная GTO H80 - 4 шт.|37501R - никелированная пластина для заземления PTCE - 2 шт.|CM010610 - винт с крестообразным шлицем М6х10 - 20 шт.|CM100600 - гайка с насечкой, препятствующей откручиванию М6 - 20 шт.
Сфера применения: отапливаемые помещения с низкой относительной влажностью атмосферной среды с очень незначительным уровнем загрязнения (офисы, школы, музеи и тд.)|неотапливаемые помещения (пространства) со средней температурой и относительной влажностью, низкая частота конденсации и низкий уровень загрязнения (помещения для хранения, спортивные залы)

Сертификаты

ПИСЬМО 697-260121
Откроется в новом окне

Чтобы выбрать понравившийся товар, просто добавьте его в корзину.

Когда все будет готово, перейдите в Корзину. В корзине проверьте список номенклатуры Вашего заказа, после пожалуйста, укажите Ваш телефон и e-mail, и нажмите «Отправить заказ» — в случае возникновения уточняющих вопросов, наш менеджер свяжется с вами, чтобы уточнить все детали.

После вы получите подтверждение вашего заказа на указанную вами электронную почту. И всё, что вам останется — это с нетерпением ждать счета на оплату, а после оплаты, доставки купленного товара и радоваться своей новой покупке!

Мы рекомендуем добавить в комментарии к заказу информацию, которая поможет службе доставки быстрее Вас найти.

Нажмите кнопку «Отправить заказ», и мы позаботимся о том, чтобы ваша покупка была доставлена как можно быстрее. Спасибо, что выбираете нас!

Способы оплаты

Мы стремимся сделать процесс оплаты максимально удобным и безопасным для вас. На нашем сайте доступны несколько способов оплаты, чтобы вы могли выбрать наиболее подходящий вариант:

  1. Дебетовые карты: Мы принимаем карты Visa, MasterCard и МИР, Unionpay. Оплата происходит через защищенное соединение, что гарантирует безопасность ваших данных.
  2. Электронные системы платежей: Вы можете оплатить заказ через популярные электронные кошельки, такие как СБП, СБЕР-pay, T-pay, Я-Пэй. Просто выберите нужный способ на этапе оформления заказа.
  3. Банковский перевод между юридическими лицами: Если вы предпочитаете оплачивать заказ через расчетный счет организации, после оформления и согласования заказа с менеджером, мы вышлем вам счет-договор на оплату.

Безопасность платежей

Мы заботимся о безопасности ваших транзакций. Все данные передаются по защищенному протоколу SSL, что обеспечивает защиту от несанкционированного доступа.

Если у вас возникли вопросы по поводу оплаты или вам нужна помощь, пожалуйста, свяжитесь с нашей службой поддержки. Мы всегда готовы помочь!

Для получения дополнительной информации обращайтесь в нашу службу поддержки

Условия доставки

Доставка по г. Москве и Московской области

Компания ЭЛЕКТРОКОМ осуществляет бесплатную доставку по г. Москве и Московской области собственным транспортом при заказе от 15 000 рублей. Доставка товара на меньшую сумму возможна, но оговаривается с менеджером.

Порядок получения товара при доставке транспортом ЭЛЕКТРОКОМ:

  • При получении необходимо проверить соответствие количества фактически полученного товара и количества товара по товарной накладной/УПД
  • После фактического получения товара ответственное лицо грузополучателя должно расписаться в товарной накладной/УПД
  • Получающий товар сотрудник должен поставить свою подпись, расшифровку подписи и печать/доверенность организации грузополучателя
  • В случае отсутствия доверенности или печати передача товара производиться не будет

Доставка по России

Доставка по России осуществляется посредством транспортных компаний. Компания ООО ЭЛЕКТРОКОМ доставит Ваш товар до терминала транспортной компании по г. Москва. Стоимость доставки и сроки Вы сможете узнать, посетив сайты компаний перевозчиков.

Консультация по доставке:

+7 (499) 403-13-13 info@electrocom.su

Важно: При отправке груза через транспортную компанию, Вам необходимо прислать в наш адрес доверительное письмо на отправку груза.

Самовывоз со склада

  • При получении необходимо проверить соответствие количества фактически полученного товара и количества товара по товарной накладной/УПД
  • После фактического получения товара ответственное лицо грузополучателя должно расписаться в товарной накладной/УПД
  • Получающий товар сотрудник должен поставить свою подпись, расшифровку подписи и печать/доверенность организации грузополучателя
  • В случае отсутствия доверенности или печати передача товара производиться не будет

Похожие товары